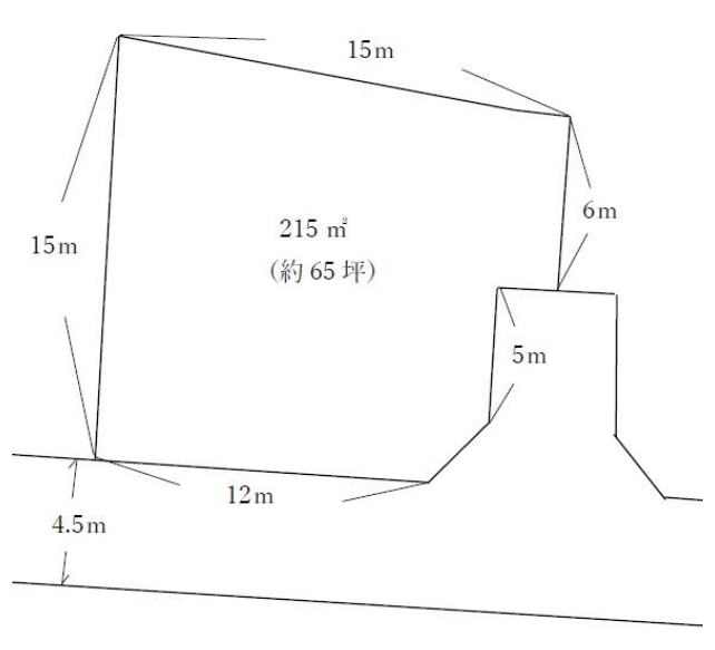
新着 横浜市泉区上飯田町 貸地 2026年4月1日 物件番号:15623 横浜市泉区上飯田町 賃料:120,000円/面積:215.00㎡ 所在地 横浜市泉区上飯田町 賃料 120,000円 土地面積 215.00㎡ 都市計画 調整 接道幅員 ー 最適用途 資材置場 礼金 1ヶ月 敷金 2ヶ月 保証金 ー 更新料 新賃料1ヶ月 登記簿地目 雑種地 入居時期 相談 備 考 周辺地図 ※地図上のマーカーは正確な位置を指していない場合があります